STAFF BLOGスタッフブログ

nagano 小泉
POSTED / 2025.06.11
和室
こんにちは
注文住宅で3LDKをご検討されるお施主様の中には、
ちょっとした畳スペースか欲しい
リビングと繋がる4帖ほどの和室が欲しいとのご希望がございます。
洋室の中に和室があると
ほっとするスペースにもなり、
来客の時には活用できるスペースに変わります。
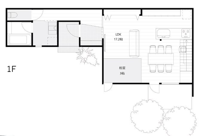
現在 建築中の
吉田5丁目モデルハウスには
17.2帖のLDKに畳スペース3畳があります。

LDKに和室を繋げた1例です。
小上がりにした和室

一段下がった和室

リビング繋がりの和室

和室の採用もご相談ください。
お気に入りの雑貨・家具と暮らす家づくり
AB STYLE HOUSE 小泉
ーーーーーーーーーーーーーーーーーー
AB STYLE 長野店 ▼
〒381-0017 長野県長野市小島197
TEL:026-217-3400
AB STYLE 千曲店 ▼
〒387-0016 長野県千曲市寂蒔1060-2
TEL:026-214-2153
AB STYLE 上田店 ▼
〒386-0002 長野県上田市住吉316-4
TEL:0268-71-7662
AB STYLE 佐久店 ▼
〒385-0051 長野県佐久市中込2988-1
TEL:0267-88-8185
長野県のおしゃれでおすすめな工務店として、イエタテログさんに
RELATED POST関連記事
お気に入りの雑貨・家具
と暮らす家
AB STYLEはお気に入りの雑貨・家具と暮らすをコンセプトにした
新築住宅・注文住宅・建売住宅を作っている工務店です。
長野市・須坂市・千曲市・上田市・佐久市近郊で家づくりをお考えの方は
ぜひご相談ください。
雑貨・カフェショップも併設。カフェのみのご利用もお待ちしております。
家族の住まう家だから、おしゃれさだけではなく、機能性にも妥協はありません。
長野の寒い冬も暖かく乗り切る高気密・高断熱。そして耐震性も。
安心して快適に過ごせる家、という基本の上に、デザイン性を付加しています。
建築中の検査やアフターサービス、各種保証も充実させているので、
大切な家を、ずっと安心して愛着を持って住み続けていただけます。













