ESTATE建売・土地・中古物件情報
長野県佐久市
建売物件
佐久市長土呂 売却型モデルハウスB号地
- 販売価格3,988万円
- 所在地:佐久市長土呂字北近津1069番131、1069番132、1069番128
\ 春の家づくり見学会 4.1(水)~5.31(日)まで /

■ZEH水準住宅
■太陽光パネル搭載
太陽光発電搭載により年間約15万円の経済効果が見込めます!
※周囲の環境、天候による
■AB STYLE SW(スーパーウォール)工法の魅力とは
・デザイン+高気密・高断熱・高耐震で35年無結露保証
・くり返しの地震に強い家まるごと制振構造
・気密測定実施済み
・1種熱交換型の24時間換気システム採用
・高い遮音性能も実現

| ・ツルヤみかげ店 | 1,700m |
|---|---|
| ・セブンイレブン佐久長土呂店 | 680m |
| ・あさま幼稚園 | 1,172m |
| ・のぞみkids保育園 | 639m |
| ・浅間小学校 | 996m |
| ・浅間中学校 | 2,400m |
| ・荻原病院 | 1,600m |
| ・佐久市立国保浅間総合病院 | 2,300m |
| ・佐久市浅間出張所 | 2,400m |
| ・八十二長野銀行岩村田支店 | 2,600m |
| ・長土呂簡易郵便局 | 910m |
DETAIL物件詳細
- 販売価格3,988万円
- 所在地:佐久市長土呂字北近津1069番131、1069番132、1069番128
- ■交通
- JR小海線「中佐都駅」まで徒歩約19分
- ■敷地面積
- 公簿面積※ 198.77㎡(60.12 坪)
- ■所在地
- 佐久市長土呂字北近津1069番131、1069番132、1069番128
- ■権利
- 所有権
- ■他私道等
- 無
- ■地目
- 宅地
- ■地勢
- 平坦
- ■接面道路
- 公道 幅員:約4.0m
- ■接道方位
- 北西 接道幅:約2.0m
- ■構造
- 木造合金メッキ鋼板ぶき2階建
- ■建築年月日
- 令和8年4月完成予定
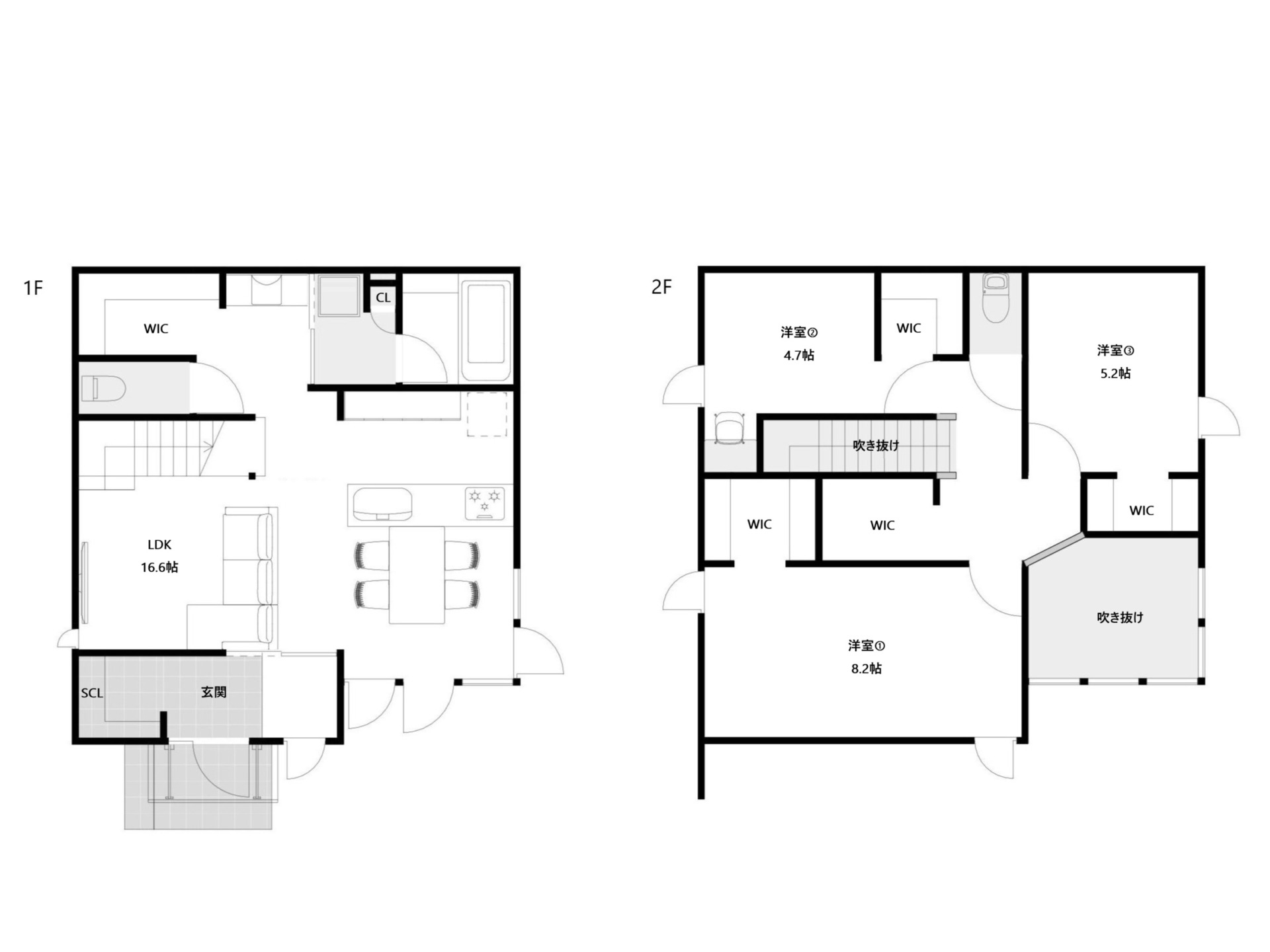
- ■建物面積
- 1階 47.20㎡
2階 47.82㎡
計 95.02㎡(28.74坪)
- ■間取り
- 3LDK
- ■建ぺい率
- 60%
- ■容積率
- 200%
- ■高度地区
- 無
- ■用途地域
- 指定なし
- ■都市計画
- 非線引区域
- ■計画道路
- 無
- ■その他法令
- 文化財保護法(近津遺跡群)
- ■設備
- 公共上水道 公共下水道 オール電化住宅
- ■駐車場
- 3台
- ■現況
- 建築中
- ■取引態様
- 売主
- ■建築確認番号
- 第24NJK-10-01203号
- ■引渡
- 相談
- ■備考
- ※路地上部分約49.13㎡を含みます。
・上記路地上部分には、A号地、B号地、C号地所有者の通行地役権を設定します。
LOCATION周辺のロケーション

ツルヤみかげ店
1,700m

セブンイレブン佐久長土呂店
680m

あさま幼稚園
1,172m

のぞみkids保育園
639m

浅間小学校
996m

浅間中学校
2,400m

佐久市立国保浅間総合病院
2,300m

八十二長野銀行岩村田支店
2,600m

長土呂簡易郵便局
910m
毎週火曜日・水曜日は定休日となります。
FAQよくある質問
- Q.表示価格は税込みですか?
- A.はい、税込み価格となります。
- Q.諸経費はいくらぐらいかかりますか?
- A.50万円程度となります。(火災保険、固定資産税(日割り)、登記費用、水道加入金等)
- Q.どのぐらいで入居出来ますか?
- A.物件により異なりますので弊社までお問合せ下さい。
- Q.申し込みはどうしたら良いですか?
- A.申込金10万円をお預かりさせていただき、原則1か月以内でのご契約となります。なお、申込金10万円は契約金の一部となります。
毎週火曜日・水曜日は定休日となります。































